-
- Fix falú vagy paneles szerkezetű változat
- Egyszerű, gyors telepíthetőség
- Variálható belső terek
- Reprezentatív külső megjelenés (külső festés a RAL színskála bármely árnyalatában)
- Komfortos belső kialakítás (változatos belső burkolatok) – 5’, 8’, 10’, 16’, 20’, 24’ kivitelben
- Irodakonténereinket kedvező konstrukcióban eladásra is kínáljuk
Béreljen professzionális irodakonténert a Mobilboxtól!
Ideális választás a Mobilbox irodakonténer bérlése, ha egy olyan irodára van szüksége, ami rugalmasan, a változó igényekhez alakítható, gyorsan és kényelmesen telepíthető. Jó választás lehet olyan esetekben is, ha az építési engedély beszerzése körülményes.
Kinek érdemes irodakonténert bérelnie?
- Akinek mobil irodára, vagy szigetelt raktárra van szüksége
- Aki egyszerű és gyors telepítést szeretne
- Akinek egy rugalmasan alakítható, modulárisan bővíthető irodára van szüksége
Miért a Mobilboxnál érdemes irodakonténert bérelni?
- Gyors ajánlattétel
- Rugalmas alkalmazkodás az ügyféligényekhez
- Egyénre szabott fizetési konstrukciók
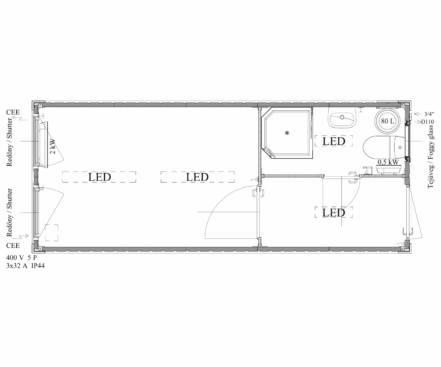
Bérelhető irodakonténerek jellemzői és méretei
MB20
Kialakítás:
- Könnyen telepíthető és mobilizálható
- Cserepaneles szerkezetű
- Konténerváz: festett acélszerkezet
- Falak:
- kívül: acél bordáslemez
- belül: laminált faforgácslap
- 1 db külső ajtó: 875 x 2.000 mm
- 2 db fehér PVC ablak: 900 x 1.200 mm, bukó/nyíló, hőszigetelt üvegezéssel, redőnnyel
- Színek:
- konténerváz: tűzpiros (RAL 3000)
- falak kívül: világosszürke (RAL 7035)
- falak belül: világos faerezetű v. fehér
- padló: világosszürke PVC
Szigetelés:
- Padló: 60/100 mm – ásványgyapot
- Falak: 60 mm – ásványgyapot
- Tető: 100 mm – ásványgyapot
Elektromos felszereltség:
- 1 db 400 V / 5 pólusú 3 x 32 A külső, vázba süllyesztett CEE csatlakozó – sorolható
- 1 db biztosíték tábla FI – relével, kismegszakítókkal
- 1 db villanykapcsoló
- 2 db 2 x 36 W-os fénycsöves mennyezeti világítás
- 230 V-os dugaljak
- 1db. 2kW-os elektromos fűtőtest
Egyedi megrendelés esetén:
- Külső festés a RAL színskála bármely árnyalatában
- Alap kiviteltől eltérő méret és kialakítás
Mérettáblázat
| Típusok | Külső méretek (mm) | Belső méretek (mm) | Tömeg (kg) | ||||
| H | SZ | M | H | SZ | M | ||
| MB20 | 6,058 | 2,438 | 2,591 | 5,858 | 2,238 | 2,330 | 1,980 |
| MB20H | 6,055 | 2,435 | 2,765 | 5,858 | 2,238 | 2500 | 2, 080 |
| MB10 | 2,991 | 2,438 | 2,591 | 2,791 | 2,238 | 2,330 | 1,130 |
| MB25 | 6,058 | 2,438 | 2,591 | 5,858 | 2,238 | 2,330 | 2,150 |
| MB26 | 6,058 | 2,438 | 2,591 | 5,858 | 2,238 | 2,330 | 2,220 |
| MB08 | 2,438 | 2,438 | 2,591 | 2,235 | 2,238 | 2,330 | 720 |
| MB05 | 1,400 | 2,438 | 2,591 | 1,200 | 2,238 | 2,330 | 620 |
| MB16 | 4,880 | 2,438 | 2,591 | 4,680 | 2,238 | 2,330 | 1,620 |
| MB24 | 7,325 | 2,438 | 2,591 | 7,125 | 2,238 | 2,330 | 2,390 |
| MB27 | 6,058 | 2,438 | 2,531 | 5,858 | 2,238 | 2,330 | 2,300 |
Ajánlatkérés A konténerek és kiegészítők áraiért kérjük töltse ki ajánlatkérőnket!
Szolgáltatásaink
- konténer bérlés
- konténer eladás
- konténer lízing
- tanácsadás
- konténer tervezés
- konténer gyártás
- konténer telepítés (daruzás, szerelés)
- konténer szállítás
- konténer karbantartás
- egyedi igények kiszolgálása
- konténer alkatrészek értékesítése
- plombák értékesítése
Irodakonténer felhasználási területei
- projekt iroda
- vezetői iroda
- öltöző
- dohányzó
- szállás
- melegedő
- műhely
- porta, őrhely
- értékesítési pont, eladótér





































