[su_list icon=”icon: check-square-o” icon_color=”#ed1c24″]
- Porta- / őrkonténerek különböző méretekben
- Szaniteregységgel felszerelt porta- / őrkonténerek
- Őrkonténereinket kedvező bérleti konstrukcióban is kínáljuk
[/su_list]
Őrkonténer eladás a Mobilboxnál
Válasszon a Mobilbox őrkonténerei közül, ha egy minden igénynek megfelelő, zárt őrhelyre van szüksége. Több méretben (5′, 8′, 10′, 16′, 20′), akár szaniter-egységgel kombináltan is kérheti őrkonténereinket, de egyedi kialakításra is van lehetőség. Igény esetén, légkondicionálót és bútorokat is biztosítunk konténereinkbe.
Miért a Mobilboxnál érdemes őrkonténert vásárolnia?
[su_list icon=”icon: check-square-o” icon_color=”#ed1c24″]
- Gyors ajánlattétel
- Rugalmas alkalmazkodás az ügyféligényekhez
- Egyénre szabott fizetési konstrukciók
- Bútorokat és kiegészítőket is biztosítunk
- Extra szigetelésű konténereinkből is válogathat
- Teljes körű szolgáltatás
[/su_list]
Kinek érdemes őrkonténert vásárolnia?
[su_list icon=”icon: check-square-o” icon_color=”#ed1c24″]
- Aki egyszerű és gyors telepítést szeretne
- Akinek komfortos megoldásra van szüksége
- Akinek az építési engedély beszerzése körülményes
[/su_list]
Eladó őrkonténerek típusainak jellemzői és méretei
MB05
Kialakítás:
- Könnyen telepíthető és mobilizálható
- Cserepaneles szerkezetű
- Konténerváz: festett acélszerkezet
- Falak:
- kívül: acél bordáslemez
- belül: laminált faforgácslap
- 1 db külső ajtó: 875 x 2.000 mm
- 3 db fehér PVC ablak, hőszigetelt üvegezéssel, redőnnyel:
- 1 db 900 x 1.200 mm-es bukó/nyíló,
- 1 db 900 x 1.200 mm-es fix beépítésű,
- 1 db 900 x 1.200 mm-es tolóablak.
- Színek:
- konténerváz: tűzpiros (RAL 3000)
- falak kívül: világosszürke (RAL 7035)
- falak belül: világos faerezetű v. fehér
- padló: világosszürke PVC
Szigetelés:
- Padló: 60/100 mm – ásványgyapot
- Falak: 60 mm – ásványgyapot
- Tető: 80/100 mm – ásványgyapot
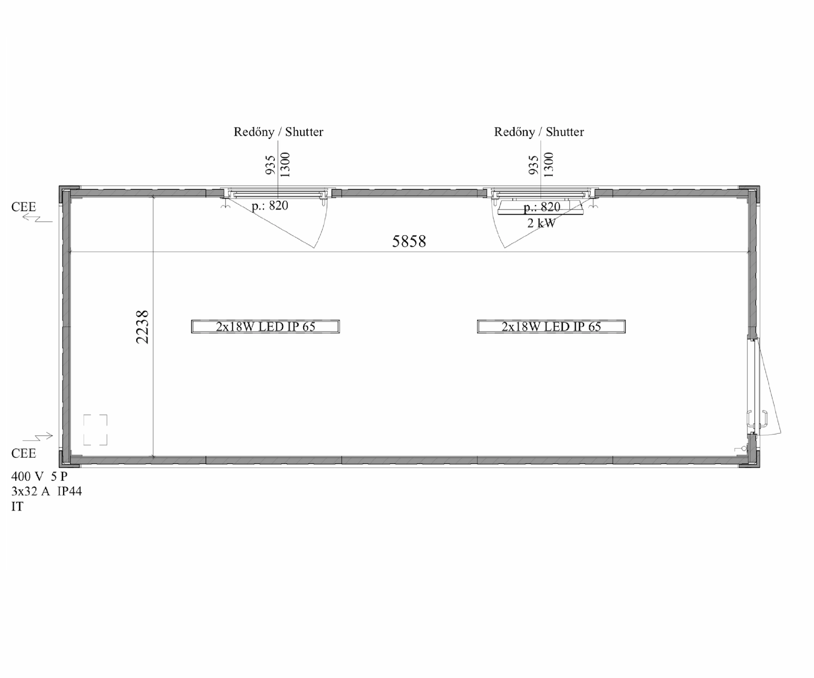
Elektromos felszereltség:
- 1 db 400 V / 5 pólusú 3 x 32 A külső, vázba süllyesztett CEE csatlakozó – sorolható
- 1 db biztosíték tábla FI – relével, kismegszakítókkal
- 1 db villanykapcsoló
- 1 db 1 x 36 W-os fénycsöves mennyezeti világítás
- 3 db 230 V-os dugalj
- 1 db 2kW-os elektromos fűtőtest
Egyedi megrendelés esetén:
- Külső festés a RAL színskála bármely árnyalatában
- Alap kiviteltől eltérő méret és kialakítás
Mérettáblázat
| Típus | Belső méretek (mm) | Külső méretek (mm) | Tömeg (kg) | ||||
| H | SZ | M | H | SZ | M | ||
| MB05 | 1,400 | 2,438 | 2,591 | 1,200 | 2,238 | 2,330 | 620 |
| MB05 ECO | 1,400 | 2,438 | 2,591 | 1,200 | 2,270 | 2,300 | 650 |
| MB08 | 2,438 | 2,438 | 2,591 | 2,235 | 2,238 | 2,330 | 720 |
| MB10 | 2,991 | 2,438 | 2,591 | 2,791 | 2,238 | 2,330 | 1,130 |
| MB16 | 4,880 | 2,438 | 2,591 | 4,680 | 2,238 | 2,330 | 1,620 |
| MB20 | 6,058 | 2,438 | 2,591 | 5,858 | 2,238 | 2,330 | 1,980 |
| MB25 | 6,058 | 2,438 | 2,591 | 5,858 | 2,238 | 2,330 | 2,150 |
| MB26 | 6,058 | 2,438 | 2,591 | 5,858 | 2,238 | 2,330 | 2,220 |
| MB15 | 2,991 | 2,438 | 2,591 | 2,791 | 2,238 | 2,330 | 1,280 |
| MB20S | 6,058 | 2,438 | 2,591 | 5,844 | 2,231 | 2,300 | 1890 |
| MB10S | 2,991 | 2,438 | 2,591 | 2,775 | 2,231 | 2,300 | 1,100 |
| MB10H | 2,991 | 2,435 | 2,765 | 2,775 | 2,238 | 2,500 | 1,100 |
| MB20H | 6,055 | 2,435 | 2,765 | 5,858 | 2,238 | 2,500 | 2,080 |
Ajánlatkérés A konténerek és kiegészítők áraiért kérjük töltse ki ajánlatkérőnket!
Szolgáltatásaink
[su_list icon=”icon: check-square-o” icon_color=”#ed1c24″]
- konténer bérlés
- konténer eladás
- konténer lízing
- tanácsadás
- konténer tervezés
- konténer gyártás
- konténer telepítés (daruzás, szerelés)
- konténer szállítás
- konténer karbantartás
- egyedi igények kiszolgálása
- konténer alkatrészek értékesítése
- plombák értékesítése
[/su_list]
Irodakonténer felhasználási területei
[su_list icon=”icon: check-square-o” icon_color=”#ed1c24″]
- projekt iroda
- vezetői iroda
- öltöző
- dohányzó
- szállás
- melegedő
- műhely
- porta, őrhely
- értékesítési pont, eladótér
[/su_list]










































